Piso en Barcelona de 76m2


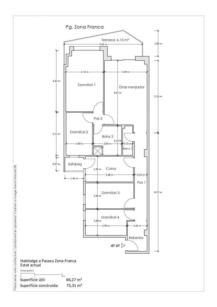
Espectacular piso recién reformado en Paseo Zona Franca: En una de las áreas de mayor crecimiento en Barcelona, encontramos esta vivienda, totalmente reformada, ubicada junto a calle Foneria, eje central de la zona, donde encontramos el Mercado Municipal, todo tipo de servicios, acceso a transporte público y a cualquier punto de la ciudad y salida a Rondas. La finca, construida en 1980 está en perfecto estado, dispone de acceso para movilidad reducida, cámaras de seguridad y 2 ascensores. La vivienda, situada en la 4ª planta, siendo una 5ª planta real, esta distribuida en amplio recibidor, cocina independiente con galería, 3 habitaciones individuales, una doble exterior, 2 baños, uno completo con ducha y otro de cortesía, salón-comedor y balcón. Una vivienda que cumplirá todas tus necesidades. ! Ven a verla, sentirás que estas en tu nuevo hogar.

Datos

  • Referencia:  AC-RES-1742-084
  • Precio de Venta:  365.000 €
  • Tipo:  Piso (Piso)
  • Superfície útil:  67 m2
  • Superfície construida:  76 m2
  • Baños:  2
  • Dormitorios:  4

Características

  • Año construcción:  1980
  • Estado conservación:  Excelente
  • Ascensor
  • Dormitorios individuales:  1
  • Dormitorios dobles:  3
  • Calefacción bomba frío/calor
  • Ubicación local:  A pie de calle
  • Interior/Exterior:  2
  • Calefacción
  • Balcon
  • Indice de referencia de precios de alquiler:  No disponible

Certificado Energético

Consumo de energía: KWh / m2 año
Emisiones: kg CO2 / m2 año
Escala de la Calificación Energética Consumo de Energía Emisiones
A (más eficiente)
B
C
D
E
F 51
G (menos eficiente) 272

Localización

  • País: España
  • Comunidad: Cataluña
  • Provincia: Barcelona
  • Localidad: Barcelona
  • Zona: Sants - Montjuïc / La Marina del Port
  • Situación concreta: Paseo de la Zona Franca
  • Tipo vía: Paseo
  • Nombre vía: de la Zona Franca
  • Código Postal: 08038

Mapa

¿Deseas más información sobre este inmueble?