Unifamiliar aislada en Castelldefels de 368m2


Impresionante Casa Unifamiliar en Venta en Can Roca, Castelldefels

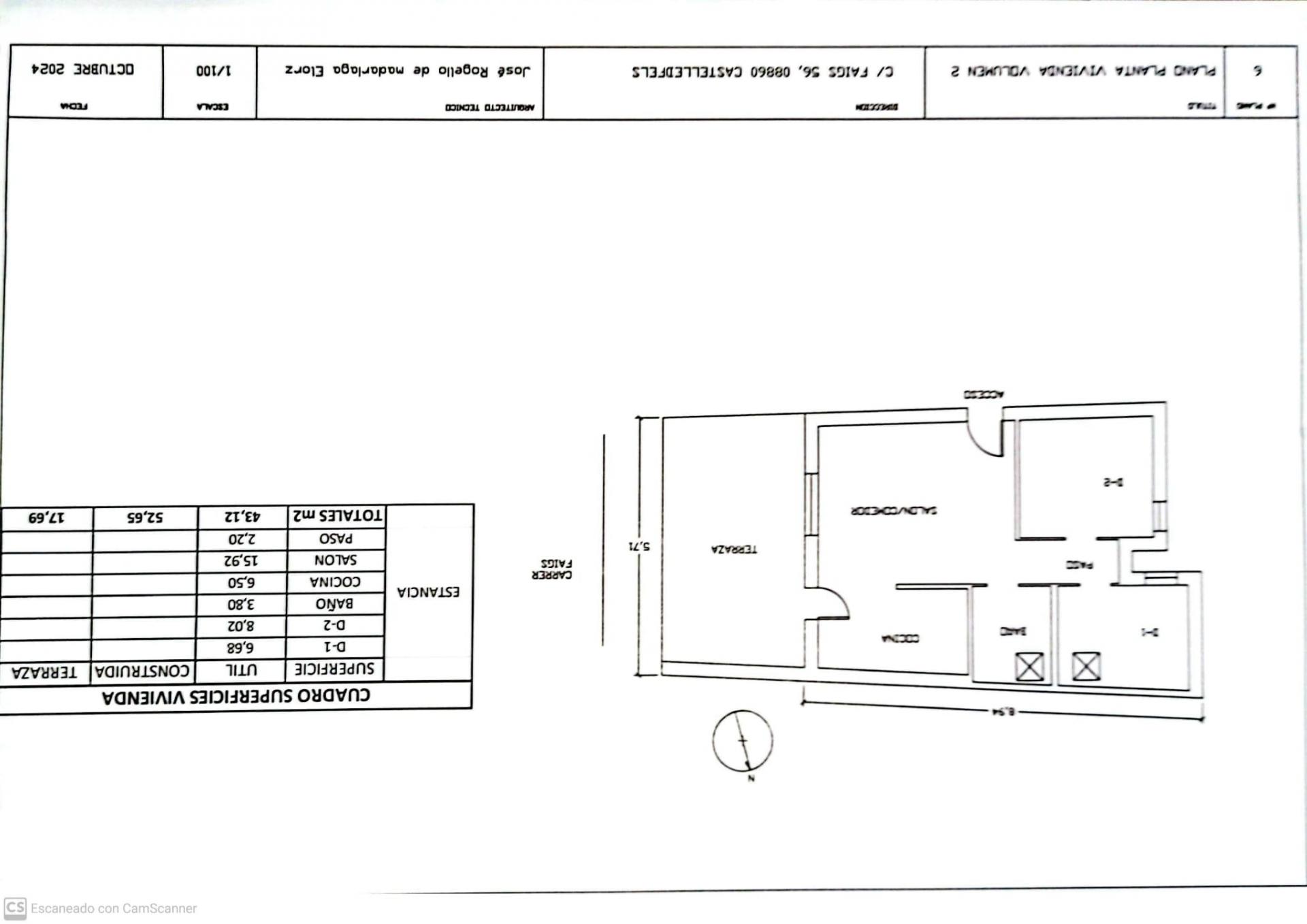
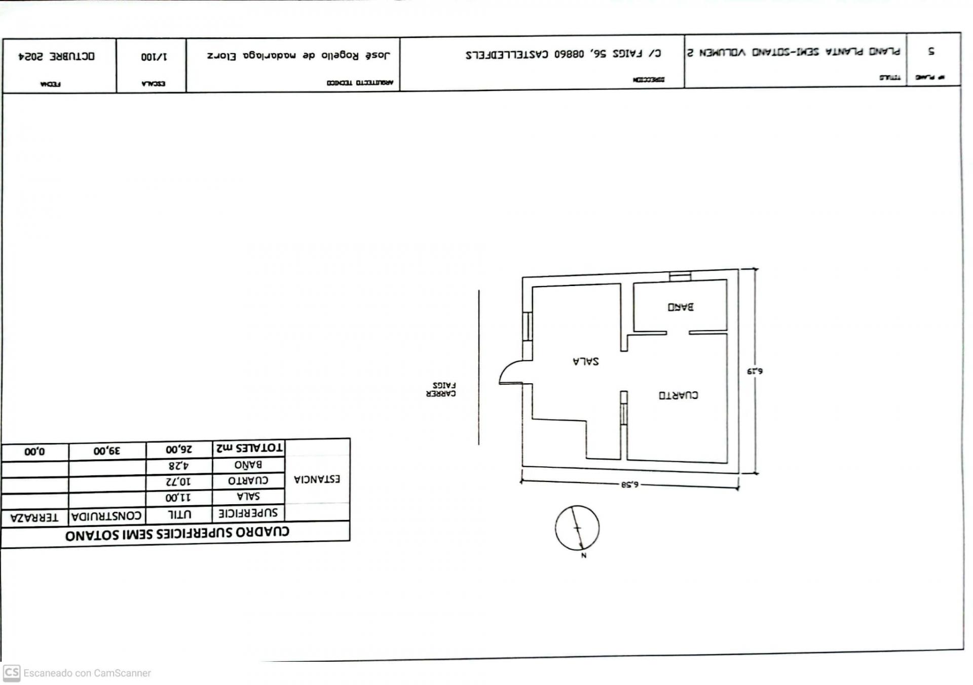
Edificio de cinco Viviendas sin división horizontal . Can Roca - Castelldefels Oportunidad única de adquirir un edificio completo en el prestigioso barrio de Can Roca, Castelldefels. Esta propiedad de 3 plantas está distribuida en cinco viviendas independientes, ideal para inversores o familias que buscan un espacio amplio y versátil. Detalles del Edificio Principal: Distribución de las Viviendas Planta Baja**: Vivienda de 82,28 m construidos más un porche. Primera Planta**: Vivienda de 90 m más terraza. Segunda Planta**: Dos viviendas, una de 52 m más terraza y otra de 38 m . Anexo al Edificio Principal**: Vivienda adicional de 53 m más terraza y un semisótano. Acabados y Características: -Suelo de mármol**: Elegancia y durabilidad en todas las viviendas. - Climatización**: Sistema de calefacción y aire acondicionado con bomba de frío y calor en todas las unidades. - Carpintería de aluminio blanco**: Ventanas con doble cristal que aseguran un excelente aislamiento térmico y acústico. - Terraza**: Espacios al aire libre en cada vivienda para disfrutar del entorno natural. - Zona comunitaria**: Jardín bien cuidado y área de barbacoa, ideal para reuniones y eventos. - Garaje**: Amplio garaje de 49 m útiles con capacidad para varios vehículos. - Trastero**: Espacio adicional para almacenamiento. Estado del Edificio: El edificio se encuentra en buen estado general, aunque algunas áreas podrían beneficiarse de mejoras y actualizaciones para alcanzar su máximo poten

Datos

  • Referencia:  93101SCAN1
  • Precio de Venta:  1.331.113 €
  • Tipo:  Casa (Unifamiliar aislada)
  • Superfície útil:  326 m2
  • Superfície construida:  368 m2
  • Baños:  6
  • Dormitorios:  9

Características

  • Año construcción:  1966
  • Estado conservación:  Buena
  • Orientación:  Sur
  • Trastero
  • Dormitorios individuales:  4
  • Dormitorios dobles:  5
  • Galería
  • Biblioteca
  • Cerca colegios
  • Cerca supermercado
  • Cerca centros deportivos
  • Zona comunitaria
  • Zona ajardinada
  • Parque infantil
  • Calefacción bomba frío/calor
  • Ubicación local:  A pie de calle
  • Calefacción
  • Soleado
  • Vistas
  • Parkes y jardines
  • Balcon
  • Cocina office
  • Patio
  • Porche
  • Terraza/jardin
  • Montaña
  • Autobus
  • Cristales dobles
  • Carpinteria aluminio
  • Suelo marmol
  • Indice de referencia de precios de alquiler:  No disponible

Certificado Energético

Consumo de energía: KWh / m2 año
Emisiones: kg CO2 / m2 año
Escala de la Calificación Energética Consumo de Energía Emisiones
A (más eficiente)
B
C
D
E
F
G (menos eficiente)
Imagen-0

Localización

  • País: España
  • Comunidad: Cataluña
  • Provincia: Barcelona
  • Localidad: Castelldefels
  • Zona: Can Roca
  • Situación concreta: Calle dels Faigs
  • Tipo vía: Calle
  • Nombre vía: dels Faigs
  • Código Postal: 08860

Mapa

¿Deseas más información sobre este inmueble?